333 SUNBROOKE DRIVEGROVELAND, FL 34736
Due to the health concerns created by Coronavirus we are offering personal 1-1 online video walkthough tours where possible.

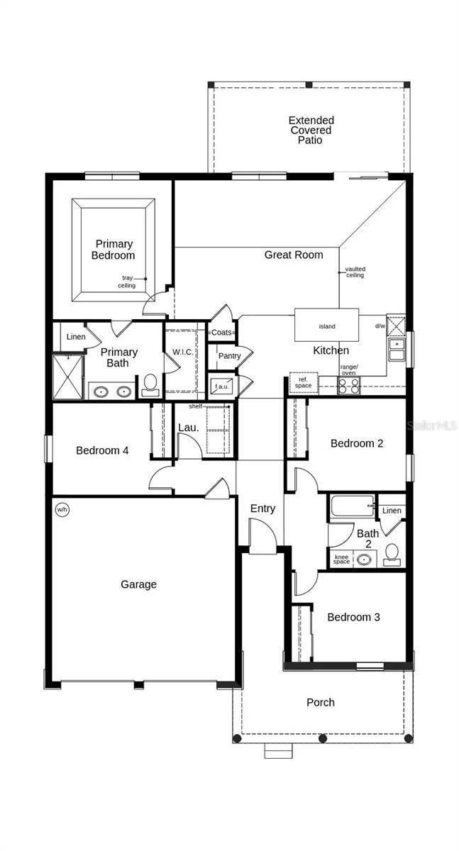
Built by a leading new home builder in Orlando, Florida, this beautifully designed single-story home blends smart design with everyday comfort. The open floor plan features volume ceilings and luxury vinyl plank flooring in the great room, with a dedicated laundry area for added convenience. The kitchen is well-appointed with a center island, Silestone® countertops, 36-in. upper cabinets, Kohler® stainless steel sink, Moen® faucet, and Whirlpool® stainless steel appliances. The private primary suite offers a tray ceiling, plush carpeting, walk-in closet, and a bath with a dual-sink vanity, linen storage, and walk-in shower with tile surround. Enjoy the extended covered back patio, perfect for relaxing or entertaining, making this home a standout among new construction homes in the Orlando area.
| 8 hours ago | Listing updated with changes from the MLS® | |
| 21 hours ago | Listing first seen on site |
Listing information is provided by Participants of the Stellar MLS. IDX information is provided exclusively for personal, non-commercial use, and may not be used for any purpose other than to identify prospective properties consumers may be interested in purchasing. Information is deemed reliable but not guaranteed. Properties displayed may be listed or sold by various participants in the MLS Copyright 2025, Stellar MLS.
Last checked: 2025-12-30 03:00 PM EST

Did you know? You can invite friends and family to your search. They can join your search, rate and discuss listings with you.