SR-307 KM-7 URB BELLO HORIZONTE LOT 11CABO ROJO, 00623
Due to the health concerns created by Coronavirus we are offering personal 1-1 online video walkthough tours where possible.




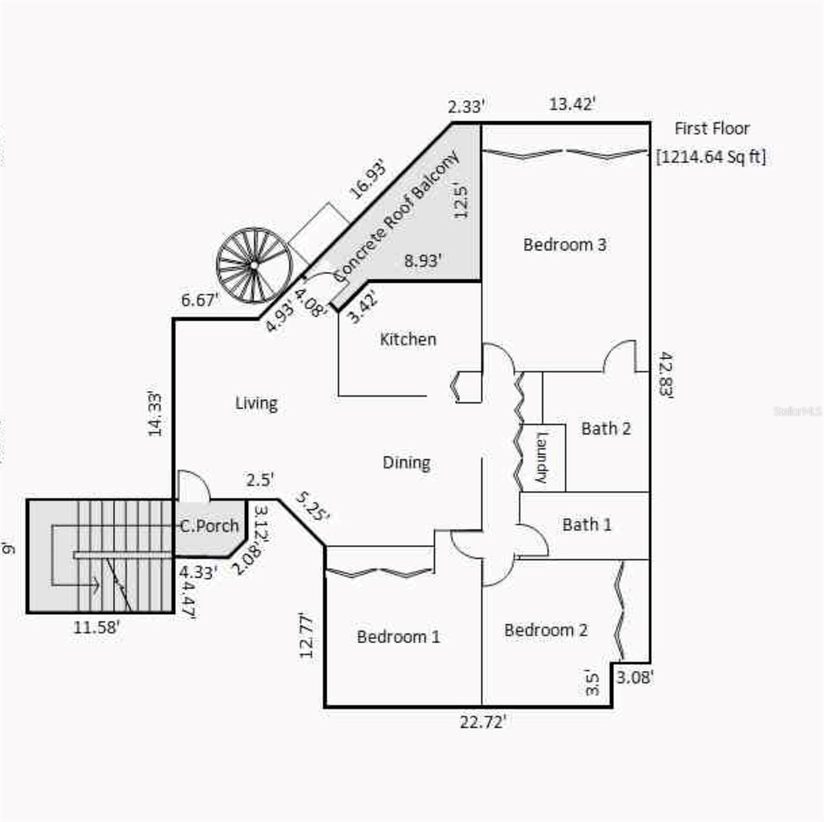
A Two-story single-family residence located in the gated community of Bello Horizonte Development in Cabo Rojo, Puerto Rico. This property offers a harmonious combination of comfort, privacy, and convenience in one of the most desirable residential areas on the island’s southwest coast. The home sits on a 589 square meter interior lot with rectangular configuration and level topography, featuring concrete construction and a gross living area of approximately 1,215 square feet. Designed for tropical living, the house includes six rooms, three bedrooms, and two full bathrooms, offering a comfortable and functional layout. The interior features ceramic floors, concrete walls, and modern finishes throughout the living, dining, and kitchen areas. Each space shows average to good condition, reflecting proper maintenance and normal signs of wear. Humidity was observed in limited areas with a minimal estimated cost to cure of approximately $1,000. Outdoor amenities enhance the property’s appeal and functionality, including a porch, balcony, double extended carport with space for up to four vehicles, two concrete storage units, a spacious concrete roof terrace, and fenced paved areas. The home also includes a spiral staircase that leads to the rooftop, providing open-air views of the residential surroundings. A diesel generator is located on site but considered personal property and excluded from the valuation. The site is located within Flood Zone X (FEMA Map 72000C1545J, dated 11/18/2009), meaning it lies outside the Special Flood Hazard Area. Zoning is classified as RT-I (Intermediate Touristic Residential), allowing for a wide range of residential uses and representing excellent potential for both primary occupancy and long-term investment. Public utilities include PREPA for electricity and PRASA for water, with a private septic tank system located on the rear side of the property. The appraiser notes an extraordinary assumption that the septic tank complies with applicable building and environmental codes. The Bello Horizonte Development is a tranquil and access-controlled neighborhood featuring asphalt roads, concrete sidewalks, curbs, and gutters. The area maintains a stable growth rate and balanced supply and demand in its housing market, with typical marketing times between 3 to 6 months. Nearby amenities include schools, supermarkets, service stations, restaurants, and recreational areas. Access to the main regional highway PR-307 provides easy connectivity to downtown Cabo Rojo, Boquerón Beach, and the scenic coastal routes leading toward Joyuda and El Combate. Market data reflects strong residential stability in this sector. Comparable sales within similar developments ranged between $335,000 and $420,000, supporting a market value conclusion of $364,000 as of August 27, 2025. The property was tenant-occupied at the time of inspection, generating rental income of approximately $650 each month (utilities not included). This property represents a solid opportunity to own a well-maintained home in one of Cabo Rojo’s most sought-after gated communities—ideal for those seeking a peaceful residential environment near Puerto Rico’s most beautiful beaches, natural reserves, and vibrant coastal lifestyle.
| 4 hours ago | Listing updated with changes from the MLS® | |
| 4 hours ago | Price changed to $369,900 | |
| yesterday | Status changed to Active | |
| 2 days ago | Listing first seen on site |
Listing information is provided by Participants of the Stellar MLS. IDX information is provided exclusively for personal, non-commercial use, and may not be used for any purpose other than to identify prospective properties consumers may be interested in purchasing. Information is deemed reliable but not guaranteed. Properties displayed may be listed or sold by various participants in the MLS Copyright 2025, Stellar MLS.
Last checked: 2025-10-29 01:01 AM EDT

Did you know? You can invite friends and family to your search. They can join your search, rate and discuss listings with you.